Das kostenlose Abbundprogramm
Erstellen Sie Dachstühle in wenigen Minuten!

Liberta kostenlos herunter­laden!

Neuerungen Liberta:

  • neue Visualisierung der Dachfenster mit Rahmen und Glasscheibe
  • Funktionalität des Dachassistenten erweitert:
  • 3D-Profil
  • Pfettenmaterial einstellbar
  • Obholz variabel bei bestimmten Anpassungsarbeiten
  • Dachziegel wählbar aus Dachziegelkatalog
  • Dachaufbau wählbar aus Katalog
  • Kopfprofilierung für Sparren und Pfetten ermöglicht

  • Absetzen aus dem Dachassistenten mit zusätzlichem Stockwerk
  • Dachaufbau mit Konterlatten und Vordachschalung
  • Displaymodus "Transparent" erweitert
  • 2D-Ansichten mit Füllfarben möglich
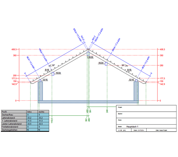
  • Profilzeichnung erweitert:
  • Um die Vermassung und Anzeige des Dachaufbaus
  • Um Vermassung der Sparrenabschnittswinkel an der Traufe
  • Darstellung von Lattung und Pfetten mit X für bessere Darstellung

  • Arbeiten in 3D
  • automatische Auswechslung von Schornsteinen und Dachfenstern
  • Integrierter Assistent für Dächer und Gauben
  • Ausgabe von Profilzeichnungen und Zimmererlisten
  • Holzlisten für das gesamte Bauwerk
  • Automatische 2D Dach-Profile mit Bemaßung

Liberta kostenlos herunter­laden!