Scalinata
Das kostenlose Treppenbauprogramm
Erstellen Sie Holztreppen in wenigen Minuten!
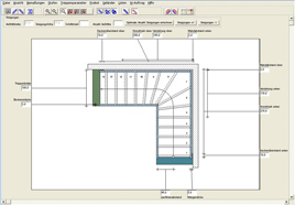
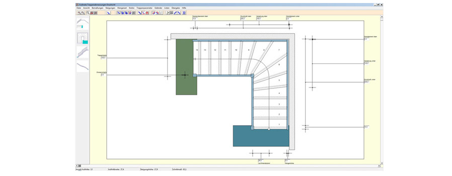
Treppenarten:
- gerade Treppe
- Podesttreppen
- Halbwendel-Treppe
- Viertelwendel-Treppe
- 2x Viertelwendel-Treppe
Ausführung der Treppen:
- eingestemmte Wangen
- Geländer an Licht-/Wandwange
- mit und ohne Setzstufen
- mit und ohne Eckpfosten
- mit Krümmling